-
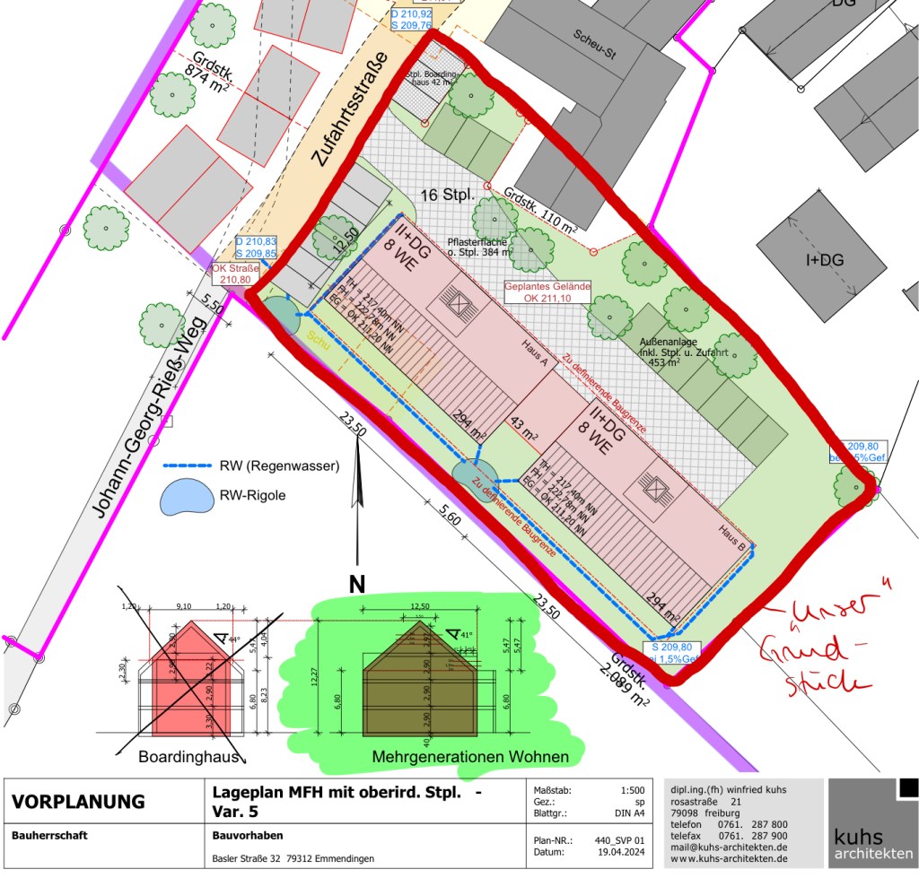
Continue reading →: Die Pläne und KostenAlle aktuellen Pläne werden hier beschrieben und stetig ergänzt.
-
Continue reading →: Die UmgebungHier findet ihr Bilder zur Umgebung des Grundstücks: Die Felder und der Wald im Anschluss, die Elz, der…
-
Continue reading →: Der ZeitplanHier könnt ihr nachlesen, was bisher passiert ist und in welchen Phasen wir stecken.



